Das massive haus - Entwurf/masterPROJEKT III winter 2025/26

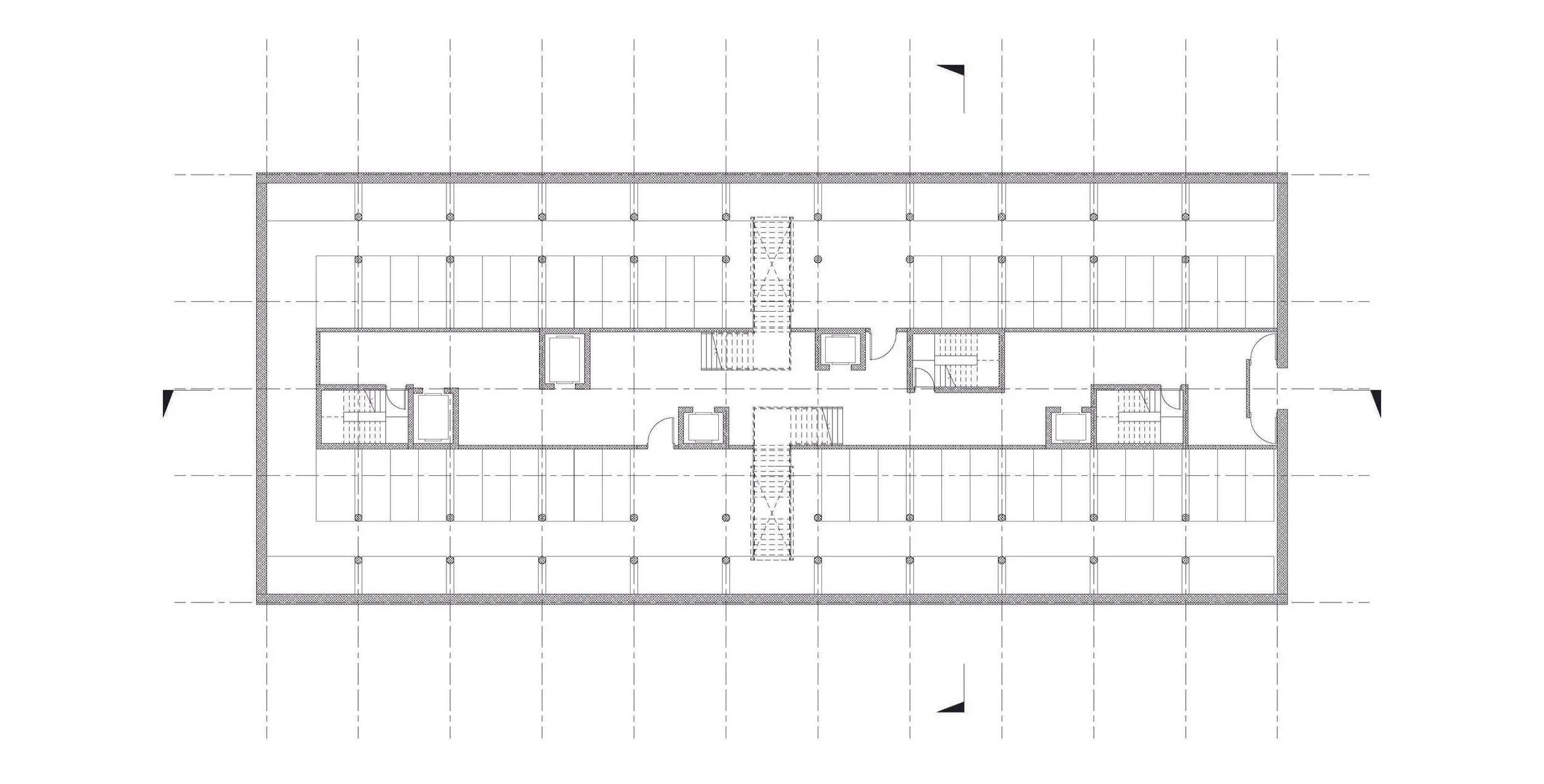
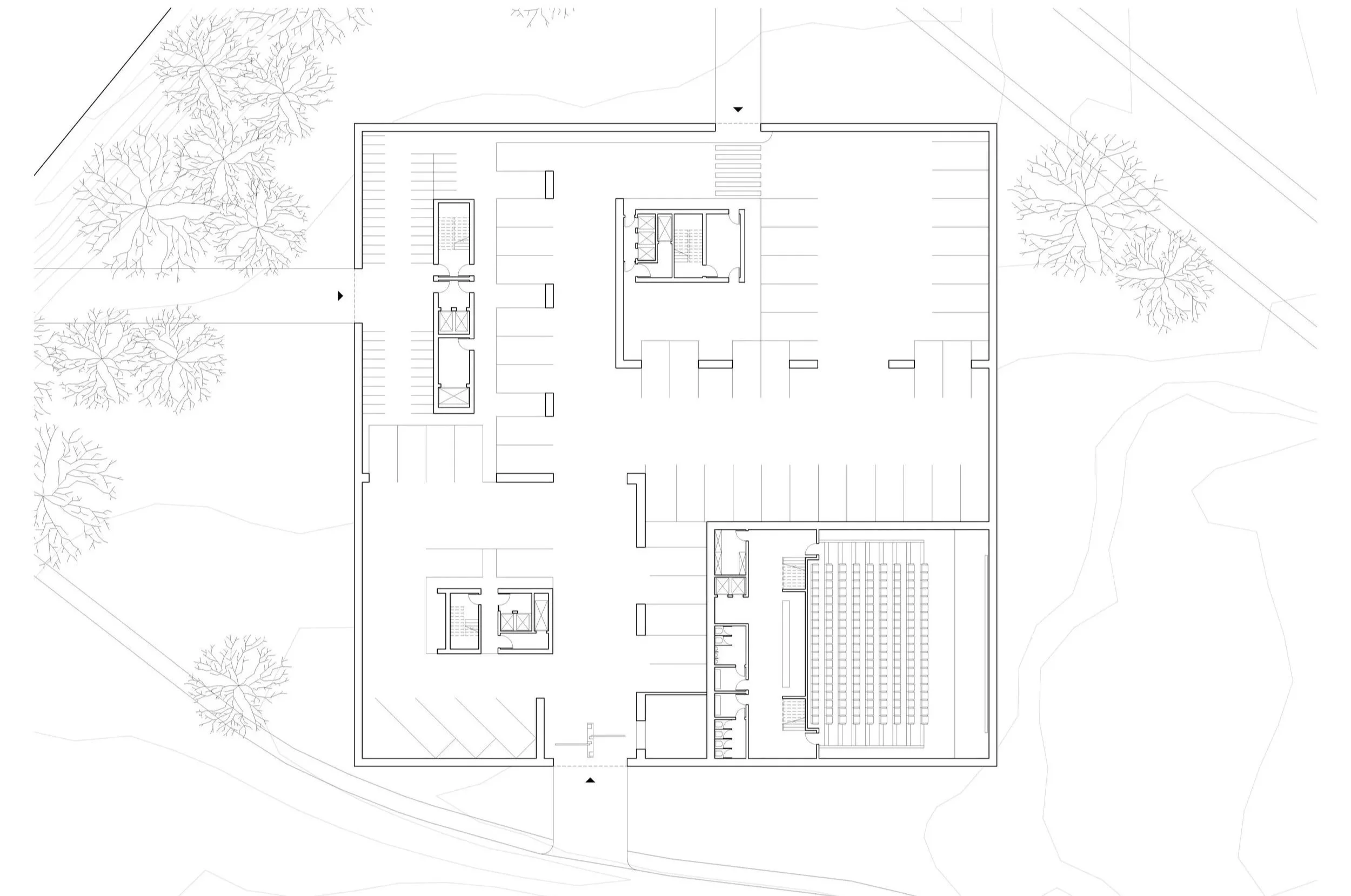
Die Aufgabe ist der Entwurf eines massiven Hauses auf dem Leica-Campus in Wetzlar. Die exponierte Lage erfordert eine klare, prägnante Architektur, die sich aus Ort und Topografie entwickelt und zugleich eine starke tektonische Präsenz zeigt. Das Haus steht für Dauer, Ruhe und Widerstandskraft.Im Fokus steht die Auseinandersetzung mit dem Massiven: Schwere, Beständigkeit, Materialität sowie das Zusammenspiel von Raum, Struktur und Hülle. Monolithische Bauweisen ermöglichen robuste Konstruktionen, klare Ordnung und atmosphärisch dichte, lichtgeprägte Räume. Ziel ist es, diese Qualitäten in eine eigene architektonische Sprache zu übersetzen und das Haus als dauerhaftes, ortsbezogenes Bauwerk zeitgemäß zu interpretieren.

Alexander Klement










Maximilian Klein








Antonia Wiedenhues





Mingyu Lee